Nhà 3m mặt tiền nhưng đầy đủ tiện nghi cho 5 người, có cả giếng trời, phòng giải trí
Cập nhật: 08:44 01/11/2025
House in Hirano tọa lạc trong một khu dân cư đông đúc ở thành phố Osaka. Thách thức lớn nhất đối với đội ngũ KTS khi thiết kế House in Hirano là ngôi nhà nằm trên khu đất hình cột cờ, dải đất phía trước hẹp, dài còn khu đất phía sau thì mở rộng hơn. Họ sẽ phải thiết kế một ngôi nhà nhỏ gọn nhưng đủ các phòng riêng, đáp ứng nhu cầu sinh hoạt của gia đình có 5 người nhưng tính thẩm mỹ vẫn phải đảm bảo.

House in Hirano là một ngôi nhà phố nhỏ nhưng có cách sắp xếp khu vực chức năng thông minh
House in Hirano là minh chứng rõ nét cho cách giải quyết khéo léo trong thiết kế nhà phố mặt tiền hẹp. Với bề ngang chỉ khoảng 3m, ngôi nhà buộc phải tận dụng từng mét vuông để bố trí công năng hợp lý mà không gây cảm giác bí bách. Đây là bài toán quen thuộc với nhiều gia chủ sở hữu đất hình cột cờ, và House in Hirano đã mang đến một lời giải vô cùng sáng tạo, đáng tham khảo.
Thách thức lấy ánh sáng cho ngôi nhà bao quanh 4 phía đều là nhà hàng xóm
Dải đất hẹp, dài phía trước có chiều rộng chỉ khoảng 3m, các KTS sẽ phải xử lý không gian ở đây rất cẩn thận. Trước mắt, sẽ có một phần chức năng của ngôi nhà lấn vào dải đất hẹp này. Thách thức không dừng lại ở đó, bao quanh cả 4 phía là các tòa nhà lớn nên nếu đặt cửa sổ trên tường thì gần như không có tầm nhìn rộng. Lúc này, giải pháp được đề ra là tạo giếng trời, đảm bảo tầm nhìn phía trên và lấy được càng nhiều ánh sáng từ giếng trời càng tốt.

House in Hirano tọa lạc trên khu đất hình cột cờ, mặt tiền hẹp của ngôi nhà thực sự rất thú vị. Bao quanh nhà là các ngôi nhà cao tầng của hàng xóm

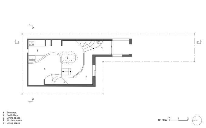
Mặt tiền rộng chỉ khoảng 3m nên gần như chỉ đủ cho lối đi vào

Có thể thấy thiết kế liền mạch, sàn nhà nâng dần độ cao và kéo dài từ hành lang cho đến sâu bên trong nhà
Điểm đặc biệt của công trình là việc khai thác tối đa giếng trời trong nhà phố. Khi xung quanh bị bao vây bởi các công trình cao tầng, việc mở cửa sổ thông thường không còn hiệu quả. Giếng trời trở thành yếu tố trung tâm để đón sáng, thông gió và kết nối các tầng với nhau một cách trực quan. Nhờ đó, toàn bộ không gian bên trong vẫn thông thoáng, dễ chịu.

Ở House in Hirano, giếng trời là một những yếu tố quan trọng nhất

Giếng trời chính là khoảng hở lớn nhất giúp lấy ánh sáng tự nhiên cho toàn bộ không gian trong nhà

Khoảng mở thông tầng cũng giúp lưu thông không khí, tạo cảm giác rộng rãi và thư giãn hơn
"Sắp xếp" không gian sống cho House in Hirano
Kế hoạch đưa ra là xếp chồng dần dần từ ngoài tiến vào bên trong, tựa như một ngọn núi tự nhiên. Cách thiết kế này cũng giúp tạo cảm giác cởi mở và tự do hơn. Để phá vỡ cảm giác của một ngôi nhà thông thường, sàn nhà sẽ nâng cao dần, tạo ra nhiều khu vực chức năng hơn và cũng mang đến cảm nhận tự nhiên hơn.

Khi đi từ cửa chính vào, các khoảng sàn trong House in Hirano sẽ được nâng cao dần

Nhìn từ trên cao xuống, thứ tự các không gian chức năng sẽ là phòng ăn, phòng bếp và khu vực phòng khách nằm cao hơn

Tầm nhìn từ phía bếp thẳng ra cửa chính. Ở khu vực này cũng có thể quan sát được phòng khách và một phần bàn ăn
Cách tổ chức không gian theo từng cấp độ cao dần là một điểm sáng đáng chú ý trong thiết kế nhà nhỏ cho 5 người. KTS đã phá vỡ lối chia tầng truyền thống, thay vào đó là tạo ra một dòng chảy liên tục từ sảnh vào đến khu bếp, phòng ăn, phòng khách, các phòng ngủ và cả phòng giải trí. Cách thiết kế này không chỉ tối ưu hoá diện tích mà còn tăng sự kết nối giữa các thành viên trong gia đình.

Ở khu vực tầng 1 còn có 1 khoảng không gian nhỏ, lưu trữ khá nhiều đồ đạc và cũng có thể là không gian vui đùa cho con. Ở đây có cửa sổ kính cho tầm nhìn ra ngoài


Các khu vực chức năng khác trong ngôi nhà sẽ được liên kế với nhau bởi các bậc cầu thang


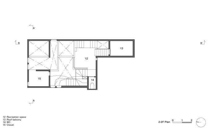
Không gian có sự phân cấp gần như khó có thể phân chia theo tầng như thông thường

Nhờ vậy, gia chủ có thể tận dụng mọi khu vực, góc gách trong ngôi nhà
Dành cho những ai đang tìm kiếm ý tưởng thiết kế nhà trong hẻm hoặc nhà có mặt tiền nhỏ, House in Hirano chính là một mẫu hình lý tưởng. Không chỉ nổi bật bởi tính thẩm mỹ hiện đại của kiến trúc Nhật Bản, công trình còn thể hiện tư duy thiết kế sâu sắc trong việc xử lý các vấn đề điển hình của đô thị như ánh sáng, thông gió và phân chia không gian.

Điều đó giúp tối ưu hóa diện tích cho ngôi nhà nhỏ

Mục tiêu hướng đến chính là những khoảng thư giãn, giải trí cho con trẻ, tạo được sự thoải mái

Đó là lý do vì sao trong ngôi nhà nhỏ như vậy nhưng vẫn có một căn phòng đặt tên là "phòng giải trí" cho cả gia đình
Kết quả cuối cùng là một House in Hirano ấn tượng ngay từ phần mặt tiền hẹp, kéo dài. Để rồi khi bước vào bên trong là một tổ ấm tiện nghi, hiện đại và cởi mở. Nếu nói rằng House in Hirano là một ngôi nhà phố điển hình thì cũng không phải là sai và đây thực sự là một công trình mà những gia chủ có ngôi nhà nhỏ có thể tham khảo, áp dụng cho tổ ấm của mình.





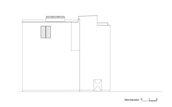
Bản vẽ chi tiết công trình
Nguồn: Sưu tầm
Tin mới hơn
- A House in the Farm: Biệt thự 2 tầng giữa vườn dừa mang tinh thần nghỉ dưỡng (Hôm qua)
- Nhà hộp rỗng: Giải pháp tối ưu không gian sống trong ngôi nhà 4 tầng tại đô thị đông (05/11/2025)
- Căn hộ 1 phòng ngủ biến thành tổ ấm đa chức năng nhờ rèm và nội thất module (04/11/2025)
- Biệt thự hiện đại biến sân trung tâm thành “trái tim” kết nối 3 thế hệ gia đình (03/11/2025)
Tin cũ hơn
- Căn hộ Velia House 3 ngủ phong cách Traditional tại The Legend (31/10/2025)
- Kiến trúc sư “hồi sinh” nhà cũ nát thành không gian 500m2 triệu view bên bờ biển (30/10/2025)
- Lĩnh Nam House: Giải bài toán ánh sáng và gió trời cho nhà ống trong ngõ nhỏ (29/10/2025)
- Nhà Sen – Từ khác biệt cá nhân đến tổ ấm thống nhất (28/10/2025)
- Villa Fuji - “Ẩn mình” giữa phố nhưng không tách rời thiên nhiên (27/10/2025)



