Sống giữa thiên nhiên trong ngôi nhà 3 tầng 1 lửng, có khoảng thông tầng xanh mát
Cập nhật: 08:52 21/11/2025
In-Between House là một ngôi nhà đặc biệt ngay từ tên gọi, sự nhấn nhá đến từ “khu vực ở giữa nhà”, nơi vừa đảm bảo sự riêng tư nhưng cũng giúp không gian thêm thoáng đãng và sáng sủa. Hãy cùng tìm hiểu kỹ hơn nét độc đáo của ngôi nhà 3 tầng 1 lửng này ngay sau đây.

Ngay từ bên ngoài, In-Between House đã nổi bật hơn hẳn nhờ tông màu đất trầm chủ đạo
Sự đặc biệt của In-Between House – khu vực trung tâm của ngôi nhà
Tên gọi In-Between House xuất phát từ hình dạng của ngôi nhà: một cấu trúc gồm 4 khối lập phương được sắp xếp để tạo ra một khoảng trống ở giữa hay chính là khoảng thông tầng. Đây cũng là khu vực được các KTS lồng ghép cảnh quan vào nhà, một khu vườn nhỏ đầy ắp cây xanh cùng những chất liệu mang đặc tính của nước giúp không gian mềm mại và nên thơ hơn, kích hoạt được vẻ đẹp của khoảng thông tầng.

In-Between House gồm 4 khối nhà được sắp xếp sao cho có thể lồng ghép các mảng xanh

Các khối nhà có thể nhìn thấy rõ ngay từ bên ngoài

Một khoảng thông tầng hay còn gọi là khu vực giữa nhà là nơi quan trọng nhất

Rèm treo lớn kết hợp cửa kính là những chất liệu mang đặc tính của nước: mềm mại, phản chiếu giúp không gian thêm nên thơ
Khoảng thông tầng giúp lấy ánh sáng ban ngày vào nhà, tạo điểm nhấn nhờ kết cấu bề mặt ấn tượng và cũng là nơi để cây cối phát triển. Khu vực này không chỉ đóng vai trò kết nối các khối nhà về mặt thị giác, trải nghiệm mà còn là vùng đệm không gian, đảm bảo sự riêng tư với các nhà hàng xóm mà vẫn thu hút được ánh sáng và thông gió vào trong nhà.

Khoảng thông tầng này là nơi giúp lấy ánh sáng và thông gió tự nhiên cho không gian
Khu vườn không chỉ ở khoảng thông tầng mà còn xuất hiện ở quanh nhà
Khu vườn không chỉ ở khoảng thông tầng mà luồn lách, bao quanh nhà giúp làm mờ ranh giới giữa các chi tiết xây dựng và tự nhiên. Ở phía trước, phần mái nhà để xe được thiết kế để cây xuyên qua, mang đến cảm giác thiên nhiên và kiến trúc cùng tồn tại, tạo nên một cuộc đối thoại chặt chẽ. Ngay bên ngoài cửa chính, một cây khác đã đâm xuyên sàn bên trong, vươn lên không gian tĩnh lặng của phòng thờ, đánh dấu cửa chính không chỉ là lối đi mà còn có mang tính tâm linh.

Phần mái khu vực để xe có thiết kế để cây mọc xuyên qua

Khi đi vào bên trong, sàn tầng 2 cũng có thiết kế lỗ mở để cây có thể mọc vươn lên phía trên

Cây cối không chỉ nằm ở khoảng thông tầng mà đan xen ở mọi khu vực trong nhà
Việc di chuyển trong nhà giống như đang đi qua một loạt các khu vườn nhiều lớp, xóa nhòa sự khác biệt giữa bên trong và bên ngoài. Ở trung tâm, ngay dưới khoảng thông tầng là một sân vuông trồng cây bụi và cây thân cao mọc hướng lên phía trên. Trên cao, các cửa sổ trời lọc ánh sáng cuống cây xanh bên dưới, giữa các bệ cây tựa như khu vườn treo trên gác xép, tạo sự tương tác theo chiều dọc cho kiến trúc và cảnh quan.

Lối đi qua từng lớp vườn khác nhau

Những bệ cây nổi ở phía trên cũng tạo được sự liên kết theo chiều dọc
Tông màu đất chủ đạo giúp In-Between House chan hòa hơn với thiên nhiên
Thiết kế nội thất củng cố thêm sự kết hợp giữa thiên nhiên và kiến trúc nhờ bảng màu đất chủ đạo. Trong toàn bộ ngôi nhà, các kết cấu luôn mang đến sự ấm cúng, thanh bình và kết nối với cảnh quan xung quanh. Tại phòng khách ở tầng 1, ngay lối vào nhà, các tấm ốp tường xen giữa lớp gỗ dán dọc và lớp phủ tường dệt tạo nên một cuộc đối thoại giữa kết cấu và nhịp điệu, gợi nhắc đến hình ảnh của một khu rừng gỗ. Bố cục này cũng khá tương đồng với trải nghiệm đi từ ngoài vào trong nhà, đó chính là khu vườn nhiều lớp khiến việc phân biệt trong – ngoài không còn quan trọng. Lớp ốp tường vào gạch đất nung đỏ được sử dụng cả ở ngoại thất và nội thất càng củng cố thêm tính kết nối, giúp duy trì được sự liên tục giữa bên ngoài và bên trong.

Mang tông màu nâu đất chủ đạo giúp In-Between House gần gũi hơn với tự nhiên

Không gian phòng khách ở tầng 1 yên bình và ấm cúng

Một số họa tiết nội thất dạng vân gỗ gợi nhắc đến hình ảnh những khu rừng gỗ lớn

Bầu không gian thư thái và thoải mái nhờ sự hiện diện của cây xanh ở khắp nơi

Lối cầu thang dẫn lên tầng 2 là cầu thang hộp gỗ, tích hợp thêm kệ trưng bày và hệ tủ

Khoảng thông tầng cũng là nơi kết nối các khu vực trong nhà

Một khu vực đọc sách được bố trí ở hàng lang tầng 2, có thể nhìn xuống toàn bộ tầng 1


Để tăng sự liên kết trong không gian, các khoảng hở và cửa kính được sử dụng tối đa
In-Between House là một ngôi nhà đặc biệt, nơi các khối hộp xếp chồng lên nhau nhưng vẫn quyện hòa với tự nhiên. Thiết kế này xóa tan đi cảm giác thô cứng, thay vào đó là không gian yên tĩnh, nhẹ nhàng và nên thơ, nơi thiên nhiên có thể chung sống hài hòa với con người.





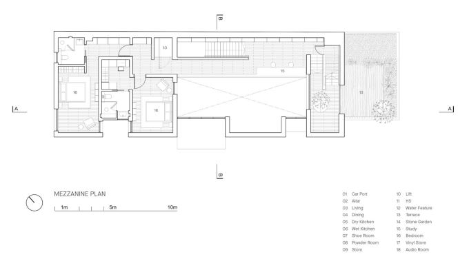
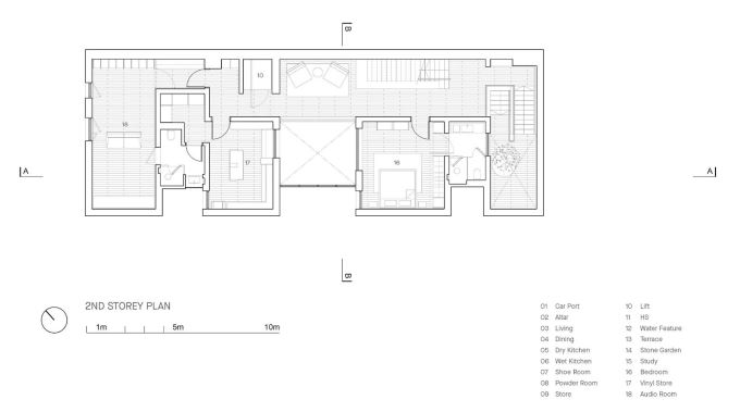
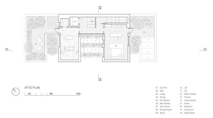
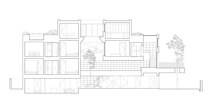
Bản vẽ chi tiết công trình
Nguồn: Sưu tầm
Tin mới hơn
Tin cũ hơn
- Giếng trời và bể bơi sân thượng: Bí quyết giữ mát, tạo sự thư giãn cho biệt thự (19/11/2025)
- Cải tạo nhà cũ 4 tầng bằng cách đập thông tầng, giảm diện tích nhưng tăng ánh sáng (17/11/2025)
- Căn hộ lấy ý tưởng từ củ hành tây, mỗi “lớp” không gian mang đậm cá tính gia chủ (15/11/2025)
- Ngôi nhà 2 tầng được thiết kế từ cảm hứng về con trai nhỏ (13/11/2025)
- Ga.o House – Nhà phố 2 tầng kết hợp văn phòng, hướng đến kiến trúc xanh tại Đà Nẵng (12/11/2025)



